0
Skip to Content
huiting's archives
Home
Portfolio
About
huiting's archives
Home
Portfolio
About
Home
Portfolio
About
This project was developed as part of the Retail Design Experience module in 2025, using Beyond The Vines as the chosen brand. This demonstrates my understanding of retail spatial planning, brand translation, and merchandising logic at a conceptual l

This project was developed as part of the Retail Design Experience module in 2025, using Beyond The Vines as the chosen brand. This demonstrates my understanding of retail spatial planning, brand translation, and merchandising logic at a conceptual level. Rather than focusing on a single outcome, the work reflects a process-driven exploration of how retail environments can enhance brand experience through thoughtful design decisions.

about brand + usp.jpg
theme.jpg
5.jpg
assortment.jpg
7.jpg
8.jpg
9.jpg
10.jpg
11.jpg
trend research.jpg
Location analysis.jpg
mall.jpg
side side.jpg
sides.jpg
kids section.jpg
Current Brand Identity and Visual Language.jpg
20.jpg
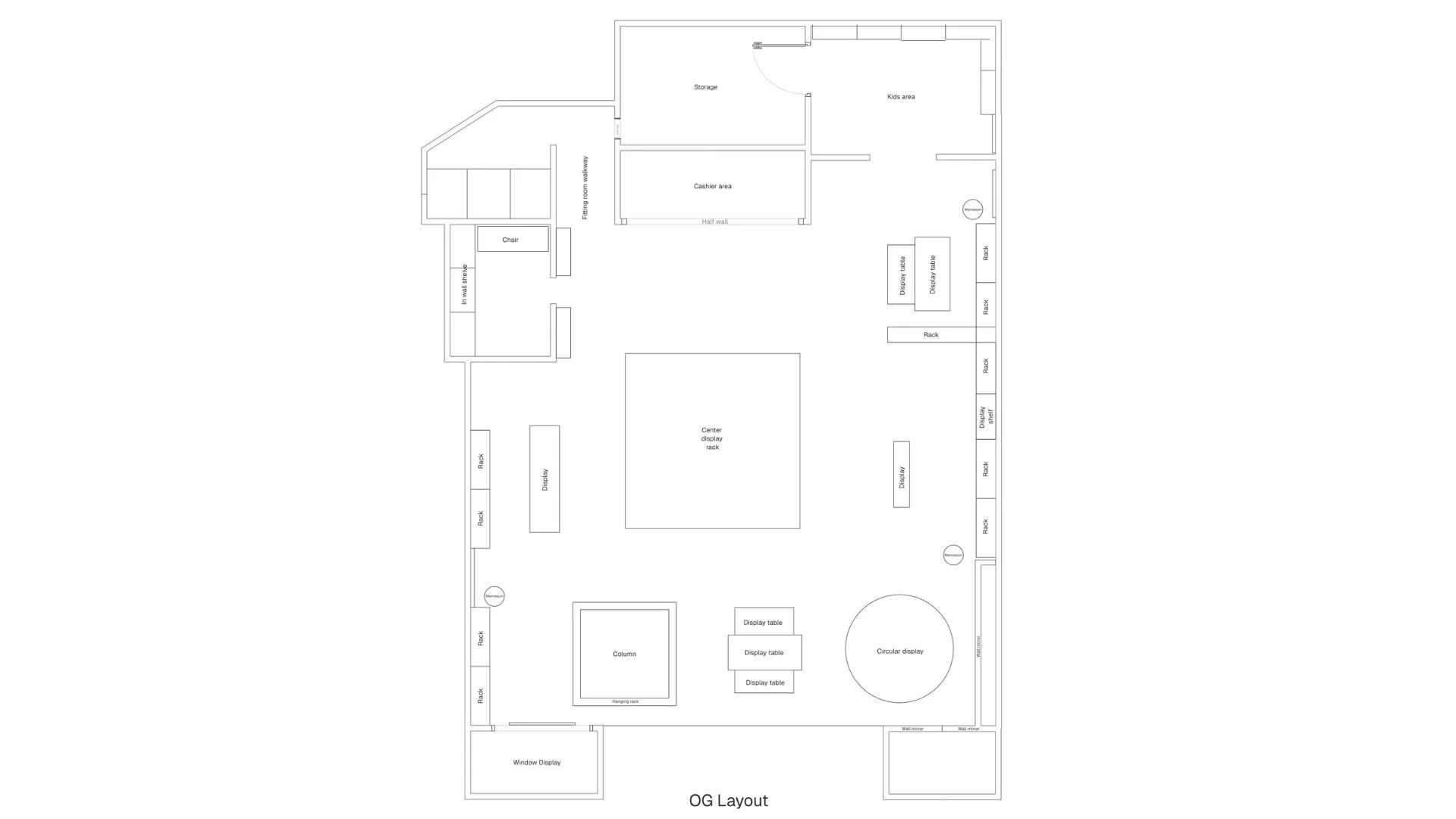
existing floorplan.jpg
27.jpg
Proposed floor plan.jpg
Rationale.jpg
25.jpg
26.jpg
28.jpg
29.jpg
mens.jpg
womens.jpg
pyramid.jpg
back pyramid.jpg
33.jpg
35.jpg
36.jpg
37.jpg
38.jpg
39.jpg
40.jpg
41.jpg
Initiatives.jpg
43.jpg
44.jpg
45.jpg
46.jpg
47.jpg
48.jpg
Le Croquis was developed during my ITE project in 2023 as a conceptual accessories brand, with a focus on bags. The name is derived from French, inspired by the idea of the croquis—the underlying structure or skeleton of a design. Similar to how a ga

Le Croquis was developed during my ITE project in 2023 as a conceptual accessories brand, with a focus on bags. The name is derived from French, inspired by the idea of the croquis—the underlying structure or skeleton of a design. Similar to how a garment sketch reveals its form once the body is removed, the brand explores what remains when excess is stripped away. This idea of structure, foundation, and form became the core narrative behind both the products and the space.

Rather than centering the project solely on the product, the focus was placed on spatial storytelling. The pop-up store was designed to resemble a museum-like environment, using textured stone surfaces and sculptural forms to create a calm, curated a

Rather than centering the project solely on the product, the focus was placed on spatial storytelling. The pop-up store was designed to resemble a museum-like environment, using textured stone surfaces and sculptural forms to create a calm, curated atmosphere. The space was intended to elevate the bags as objects of design, encouraging viewers to engage with the environment rather than treating it as a conventional retail display.

To introduce movement and playfulness within the limited scale of a pop-up, the central display was designed to be rotatable, allowing interaction from multiple angles. The elevated logo placement ensures brand visibility even from other levels, rein

To introduce movement and playfulness within the limited scale of a pop-up, the central display was designed to be rotatable, allowing interaction from multiple angles. The elevated logo placement ensures brand visibility even from other levels, reinforcing spatial awareness. Materials used in the model reflect those proposed in the concept, maintaining consistency between the design vision and execution.

This mini window display was developed as part of an assignment to design a shoebox-scale installation that combined a brand with an institutional event back in 2022. I selected Philosophy and World Mental Health Day, using the project as an opportun

This mini window display was developed as part of an assignment to design a shoebox-scale installation that combined a brand with an institutional event back in 2022. I selected Philosophy and World Mental Health Day, using the project as an opportunity to translate an abstract theme into a tangible visual narrative within a compact format.

The concept focused on mental well-being through the idea of reconnecting with nature. Mental health is often associated with slowing down and taking a moment to breathe, so the display was designed to evoke a calm, outdoor environment. Natural eleme

The concept focused on mental well-being through the idea of reconnecting with nature. Mental health is often associated with slowing down and taking a moment to breathe, so the display was designed to evoke a calm, outdoor environment. Natural elements such as greenery, florals, and stone textures were incorporated to create a soothing and restorative atmosphere around the product.

Lighting played a key role in shaping the mood of the display. DIY light fixtures were constructed using small pieces of reflective hard paper to softly direct light toward the product, enhancing its presence without overpowering the scene. Real grav

Lighting played a key role in shaping the mood of the display. DIY light fixtures were constructed using small pieces of reflective hard paper to softly direct light toward the product, enhancing its presence without overpowering the scene. Real gravel sourced from a gardening shop was used to ground the display and add tactile realism, reinforcing the nature-inspired concept.

Despite its small scale, the display was designed with attention to depth, balance, and storytelling. This project highlights my ability to work resourcefully with materials, experiment with lighting, and translate conceptual themes into clear visual

Despite its small scale, the display was designed with attention to depth, balance, and storytelling. This project highlights my ability to work resourcefully with materials, experiment with lighting, and translate conceptual themes into clear visual merchandising outcomes, even within spatial and budget constraints.

Moschino × Barbie display developed during my ITE visual merchandising course in 2022.

The concept reinterprets Moschino’s playful identity through a miniature, doll-scale installation, merging fashion fantasy with spatial storytelling.

Moschino × Barbie display developed during my ITE visual merchandising course in 2022. The concept reinterprets Moschino’s playful identity through a miniature, doll-scale installation, merging fashion fantasy with spatial storytelling.

The display was designed as a three-dimensional wardrobe structure opened at a 45-degree angle, allowing viewers to engage with the piece from multiple perspectives while maintaining a clear focal point.

The display was designed as a three-dimensional wardrobe structure opened at a 45-degree angle, allowing viewers to engage with the piece from multiple perspectives while maintaining a clear focal point.

A doll dress was used in place of a full-scale garment to reinforce the Barbie-inspired narrative, transforming the display into a stylised fashion vignette rather than a conventional retail presentation.

A doll dress was used in place of a full-scale garment to reinforce the Barbie-inspired narrative, transforming the display into a stylised fashion vignette rather than a conventional retail presentation.

Integrated lighting was positioned along the sides of the structure to frame the garment and enhance depth, directing attention toward the centre while amplifying the playful yet curated Moschino aesthetic.

Integrated lighting was positioned along the sides of the structure to frame the garment and enhance depth, directing attention toward the centre while amplifying the playful yet curated Moschino aesthetic.

This project was developed as part of the ITE Visual Merchandising (VSM) Final Year Project in 2023, where my team was tasked to conceptualise and execute a Fall/Winter window display inspired by Bottega Veneta. As the team leader, I proposed taking

This project was developed as part of the ITE Visual Merchandising (VSM) Final Year Project in 2023, where my team was tasked to conceptualise and execute a Fall/Winter window display inspired by Bottega Veneta. As the team leader, I proposed taking on the largest window space to create a strong visual impact through scale, composition, and brand alignment. The display explored seasonal transition through layered drapery, restrained colour tones, and structured styling, translating Bottega Veneta’s understated luxury into a physical retail environment.

While the initial concept was proposed by a team member, I worked closely with her to lead the development of the idea—refining the visual direction, overseeing spatial planning, and coordinating execution. As the team leader, I was responsible for c

While the initial concept was proposed by a team member, I worked closely with her to lead the development of the idea—refining the visual direction, overseeing spatial planning, and coordinating execution. As the team leader, I was responsible for creative alignment and ensuring the final outcome remained cohesive and true to the intended brand narrative. This project reflects my approach to leadership, collaboration, and spatial design within a real-world visual merchandising context.

BACK
NEXT